Tillbyggnad, Lund

2020-09/1.1
2020-10/1602756657_planer-aa-fasad

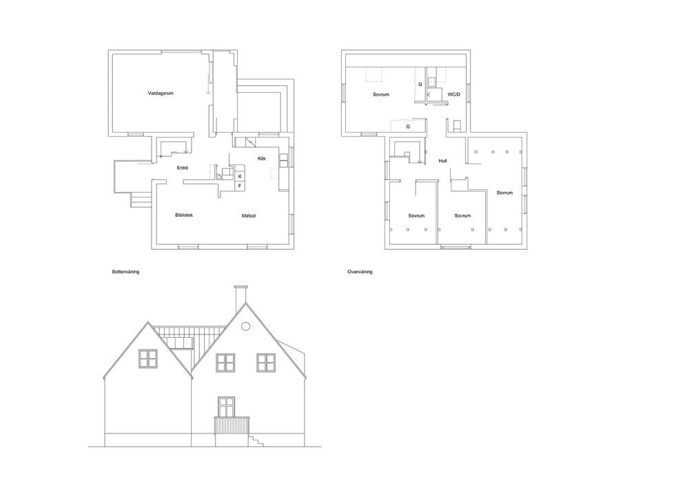
En tillbyggnad är alltid anpassad till dina behov. I denna villa i Lund smälter tillbyggnaden ihop med den tidigare befintliga byggnaden och utökar boytan.

Relaterad