Gotland Sommarstuga

2022-01/interioer.bra
2022-01/exterioer1
2022-01/exterioer2
2022-01/plan

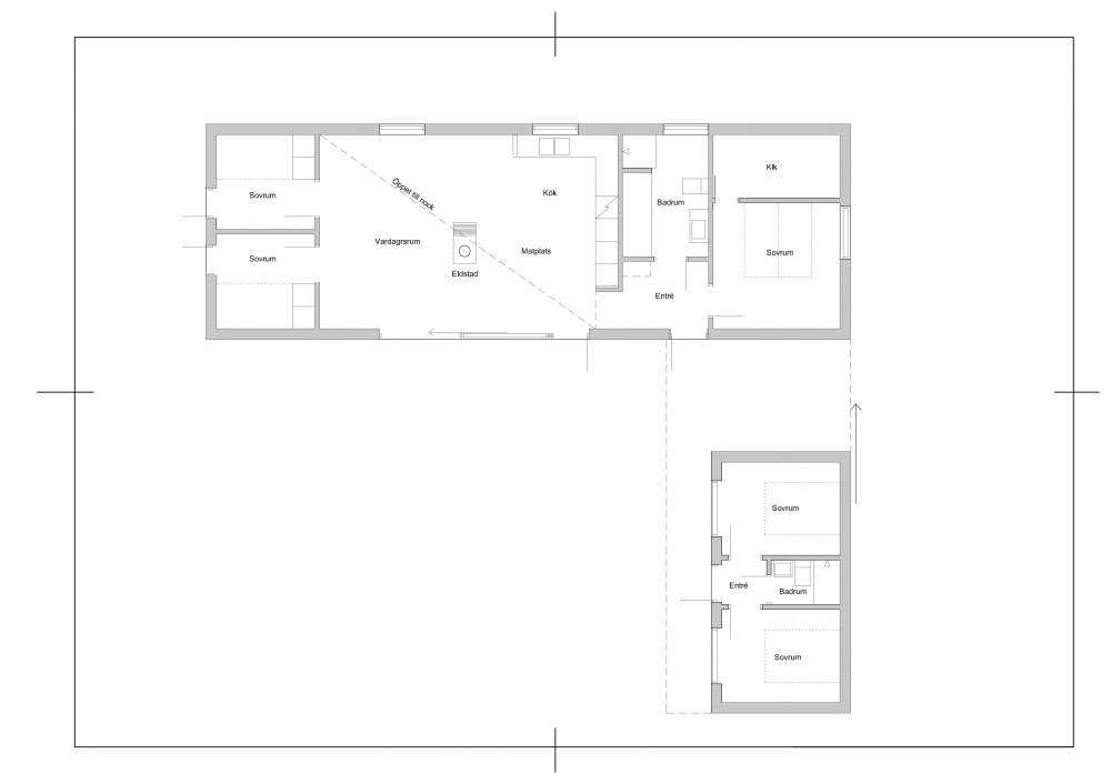
I samarbete med PP Bygg har NikeArkitektur utformat en rymlig sommarstuga med totalt 5 sovrum samt ett vardagsrum och kök. Sommarstugan på sammanlagt 109 kvadratmeter kommer byggas i Stora Hamre, på östra Gotland. Både interiört och exteriört kläs sommarstugan av naturnära färger och material för att bli en del av sin omgivning.

Mäklare Johan Fahlstedt.

För vidare information kring försäljning maila: johan.fahlstedt@svenskfast.se

Visualiseringar producerade av Edith Grundström

Relaterad